Description
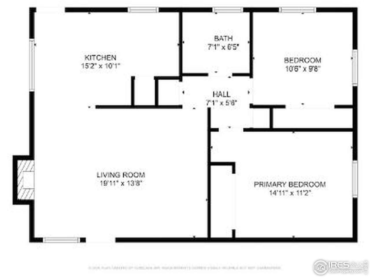
Duplex in Longmont. Come check out this brick income producing Duplex in popular area near Twin Peaks Golf Course, Safeway, schools, trails and parks. This all brick 4 bedroom and 2 bath duplex is a solid investment. The tenants pay all utilities except water in January 2026. This well maintained duplex features two separate 2 bed / 1 bath units with private entrances, full kitchens and individual utilities. Making it perfect for investors. 30K invested last year to remodel. One of the 2 bedroom units has been completely remodeled with w/d hookups, new paint, floors, kitchen, fenced in area and bathroom. The other unit has W/D in unit all new flooring and kitchen remodeled. Fenced and additional shed. This property also offers ample of off street parking. Investors come and see these As-is duplex with zero vacancy except during remodel. Both units are currently rented through 6/30/26 & 7/31/26.
-
0BEDS
-
0.14ACRES
-
0BATHS
-
01/2 BATHS
-
1,725SQFT
-
$246$/SQFT
School Information
Description
Duplex in Longmont. Come check out this brick income producing Duplex in popular area near Twin Peaks Golf Course, Safeway, schools, trails and parks. This all brick 4 bedroom and 2 bath duplex is a solid investment. The tenants pay all utilities except water in January 2026. This well maintained duplex features two separate 2 bed / 1 bath units with private entrances, full kitchens and individual utilities. Making it perfect for investors. 30K invested last year to remodel. One of the 2 bedroom units has been completely remodeled with w/d hookups, new paint, floors, kitchen, fenced in area and bathroom. The other unit has W/D in unit all new flooring and kitchen remodeled. Fenced and additional shed. This property also offers ample of off street parking. Investors come and see these As-is duplex with zero vacancy except during remodel. Both units are currently rented through 6/30/26 & 7/31/26.
Related Properties
© 2026 Information and Real Estate Services, LLC. IDX information is provided exclusively for consumers' personal, non-commercial use and may not be used for any purpose other than to identify prospective properties consumers may be interested in purchasing. Information is deemed reliable but is not guaranteed accurate by the MLS or Downtown Real Estate Brokers, LLC.. Data last updated: 2026-02-17T21:43:34.173.
Information source: Information and Real Estate Services, LLC. Provided for limited non-commercial use only under IRES Rules © Copyright IRES.
