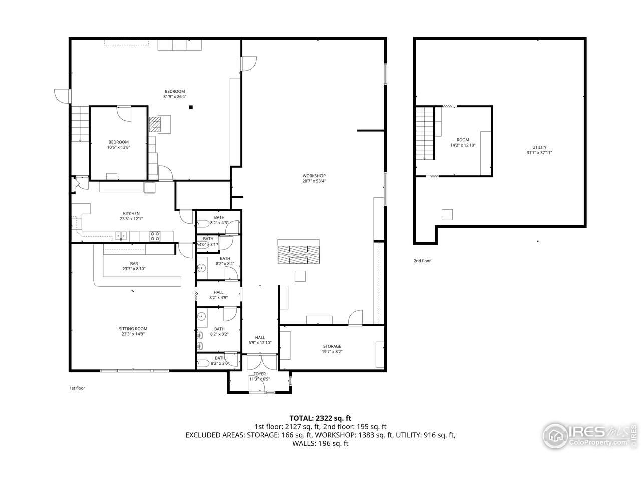
Description
Church? Multifamily? Community Center? Lounge? This property has endless uses, just a 1/2 block off Hwy 40 in the center of Kremmling. Rear of building did have previous overhead door, offering additional access. Zoned commercial, ready for your vision with ample interior storage and/or 35+ parking spaces.
-
0BEDS
-
0.25ACRES
-
0BATHS
-
01/2 BATHS
School Ratings & Info
Description
Church? Multifamily? Community Center? Lounge? This property has endless uses, just a 1/2 block off Hwy 40 in the center of Kremmling. Rear of building did have previous overhead door, offering additional access. Zoned commercial, ready for your vision with ample interior storage and/or 35+ parking spaces.
© 2026 Information and Real Estate Services, LLC. IDX information is provided exclusively for consumers' personal, non-commercial use and may not be used for any purpose other than to identify prospective properties consumers may be interested in purchasing. Information is deemed reliable but is not guaranteed accurate by the MLS or Downtown Real Estate Brokers, LLC.. Data last updated: 2026-03-16T15:43:47.603.
Information source: Information and Real Estate Services, LLC. Provided for limited non-commercial use only under IRES Rules © Copyright IRES.
